Service hotline
0086-400-8010-113
Current Location : Home > Products > Fresh air environmental control hot water integrated machine (horizontal model)
Integrating refrigeration, heating, sanitary hot water, dehumidification, fresh air replacement, and energy recovery functions.
Various places such as ultra-low energy buildings, residential buildings, apartment buildings, villas and basements, hotel rooms, testing rooms, etc.

The system consists of a high-definition touch screen and multiple indoor sensors, which can accurately collect indoor temperature, humidity, CO2, and PM2.5 values, and intelligently control the indoor air environment according to the set parameters. The device can be connected to the mobile phone APP, and the operating status of the control unit can be checked anytime and anywhere through the mobile phone.

High-efficiency filter: high-efficiency filter material, PM2.5 filtered 99% at one time
Primary filter: washable. Filters large particles, leaves, hair, mosquitoes, etc.

Model | Fresh | Air supply | Dehumidification | Refrigeration | Heating heat | Cooling | Heating | Hot water | Static pressure at | Internal machine noise | Power | Rated | Heating | Quality | Adapt to | |
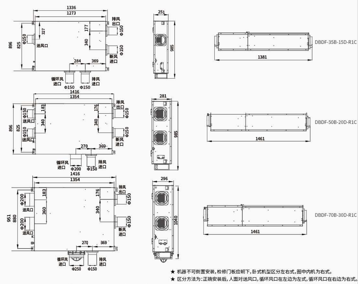
Horizontal model | DBDF-35B-15D-R1C | 150 | 500 | 2 | 70 | 75 | 3500 | 3900 | 100 | 100/60 | 41 | 220V | 1160 | 1250 | 68 | W35-DR |
DBDF-50B-20D-R1C | 200 | 800 | 2.4 | 70 | 75 | 5000 | 5400 | 150 | 100/60 | 44 | 220V | 1620 | 1720 | 80 | W50-DR | |
DBDF-70B-30D-R1C | 300 | 1100 | 3.8 | 67 | 75 | 7000 | 7700 | 200 | 100/60 | 47 | 220V | 2400 | 2450 | 85 | W70-DR | |
The testing environment for vertical/horizontal models is the same:
★ Hot water production rate: The hot water condition is measured at an environment of 20 ℃, with the water temperature rising from 15 ℃ to 55 ℃.
★ Refrigeration (heating) test conditions; The indoor dry bulb temperature is 27 ℃ (20 ℃), and the wet bulb temperature is 19 ° C (15 ℃). The outdoor dry bulb temperature is 35 ℃ (7 ℃), and the wet bulb temperature is 24 ℃ (6 ℃).

Model | W | D | H | A | B | C | E | External | Power | External machine quality |
W35-DR1 | 850 | 290 | 580 | 500 | 175 | 320 | 175 | 49 | 220V | 39 |
W50-DR1 | 850 | 290 | 580 | 500 | 175 | 320 | 175 | 52 | 220V | 40 |
W70-DR1 | 865 | 310 | 710 | 628 | 121 | 335 | 116 | 56 | 220V | 52 |
扫描二维码添加企业微信